Villa singola in vendita

Ricengo, Via dei Benedettini
€ 430.000
4 locali 4 locali
210 Mq 210 Mq
2 bagni 2 bagni

Villa singola in vendita

Ricengo, Via dei Benedettini

Descrizione annuncio

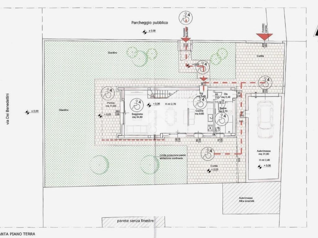
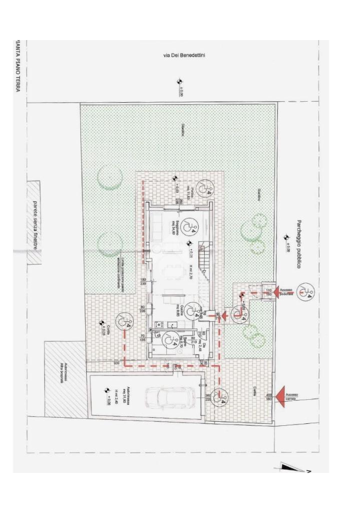
RICENGO: in tranquilla zona residenziale, proponiamo in vendita villa singola, progettata e costruita su commissione.

L’immobile si distingue per l’architettura sobria e funzionale. Disposta su due livelli, offre ambienti ampi, ben distribuiti e molto luminosi, grazie alle numerose finestre e all’ottima esposizione.

Al piano terra si articolano: l'ingresso, il soggiorno con zona cucina, il bagno ed un disimpegno dal quale si accede al passaggio coperto che unisce l'autorimessa all'abitazione e la scala aperta che conduce al piano primo.
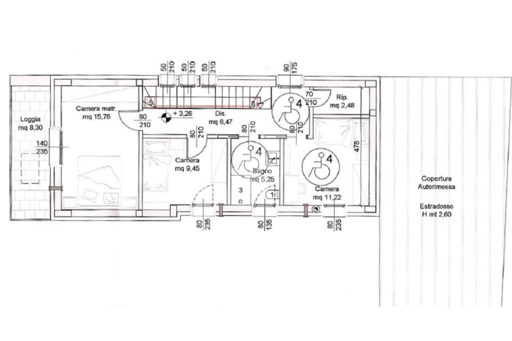
Al piano primo vi sono le tre camere da letto un secondo bagno, un disimpegno ed il ripostiglio.

All’esterno, la villa è circondata da un giardino privato che garantisce privacy e spazi verdi da vivere in ogni stagione.

Portico, loggia, e box doppio (con basculante elettrica e porta pedonale separata) arricchiscono ulteriormente la proposta.

La villa sarà realizzata con sistema costruttivo tradizionale, abbinato a soluzioni tecniche e impiantistiche moderne volte al raggiungimento della Classe Energetica 'A', per garantire comfort abitativo, efficienza e risparmio.

L’isolamento termico sarà assicurato da cappotto esterno in pannelli EPS dello spessore di 14 cm. L’impianto di riscaldamento a pavimento, alimentato da pompa di calore, sarà predisposto anche per l’installazione del raffrescamento estivo (condizionamento).

I serramenti saranno in PVC con vetri basso-emissivi, mentre l’impianto fotovoltaico da 3 kW garantirà autonomia energetica e attenzione ai consumi.

Al piano primo la copertura sarà rifinita con tetto in lamiera effetto coppo e travi a vista, per uno stile caldo e accogliente.

Ampia possibilità di personalizzazione delle finiture interne:
- scelta di piastrelle per pavimenti e rivestimenti bagno
- selezione del colore delle porte interne, infissi, pannello della porta blindata
- possibilità di scegliere tapparelle o ante esterne
- scelta tra sanitari sospesi o a filo muro

Soluzione ideale per chi cerca indipendenza, qualità costruttiva e tranquillità.

Mostra tutto

Nelle vicinanze

Trasporto pubblico Trasporto pubblico
Trasporto pubblico
2,6 Km
Scuole Scuole
Elementare Elvino Benelli
2,8 Km
Scuola Secondaria di Primo Grado Dante Alighieri
3,0 Km
Scuola Primaria Alessandro Manzoni
3,0 Km
Farmacia Farmacia
Piazzalunga
3,0 Km
Supermercati Supermercati
SMA
2,9 Km
Negozi Negozi
Sulla Pelle
3,0 Km
Le Briciole
3,0 Km
Bar Bar
L'Incontro
2,8 Km
Bar
2,8 Km
Centrale
2,9 Km
La Placa
2,9 Km
Break Food
3,0 Km
Ristoranti Ristoranti
L'ignorante
660 m
Tiraboschi
3,0 Km
Mostra tutto

Caratteristiche

Rif.:
61150471
Piano:
2 di 2 (Piano su più livelli)
Box:
1
Terrazzi:
1
Camere da letto:
3
Arredamento:
Assente
Mostra tutto
Prezzo Prezzo
€ 430.000
Rata mutuo Rata mutuo
€ 2.030 / mese
Spese annue Spese annue
€ 0
Proponi il tuo prezzoProponi il tuo prezzo

Classe Energetica

Questo immobile è esente da classe energetica
Anno di costruzione:
2026
Riscaldamento:
Autonomo
Tipo impianto:
A pavimento
Tipo alimentazione:
Altro

Ti interessa visionare l'immobile?

Fissa un appuntamento  Fissa un appuntamento

Richiedi informazioni

Clicca su Leggi per aprire l'informativa
* Questi campi sono obbligatori

Calcola il tuo mutuo

Semplice e senza impegno
Anticipo

( % )
Mutuo

( % )

pochi semplici passi

inserisci i tuoi dati
Questionario completato
Grazie per aver richiesto un appuntamento senza impegno con un nostro Consulente del Credito e Assicurativo.

Hai inserito correttamente tutti i dati necessari e a breve riceverai una e-mail con un link da convalidare per inviare i tuoi dati.
Affiliato
Tecnoffanengo Srl
Via De Gasperi, 42 26010 Offanengo (CR)

Il nostro staff


  • Claudio Pezzotti
    Affiliato

  • Luca Palumbo
    Responsabile

  • Alessandra Sperlari
    Collaboratrice

  • Kevin Bianchessi
    Collaboratore
Via De Gasperi, 42 26010 Offanengo (CR)
Zona: Offanengo - Sergnano - Pianengo - Ricengo - Izano
Mostra su mappa
Orari: L'agenzia è aperta dal lunedì al venerdì dalle 09.00 alle 12.30 e dalle 14.30 alle 20.00.Il sabato dalle 09.00 alle 12.30 e dalle 14.30 alle 18.00. La domenica solo su appuntamento.
Affiliato
Tecnoffanengo Srl
Via De Gasperi, 42 26010 Offanengo (CR)

2025 Tecnocasa Franchising S.p.A. - P. IVA 08365160152 - Via Monte Bianco 60/A 20089 Rozzano (MI). Ogni agenzia ha un proprio titolare ed è autonoma. Privacy policy | Policy utilizzo | Cookie policy